Vanves (92170)
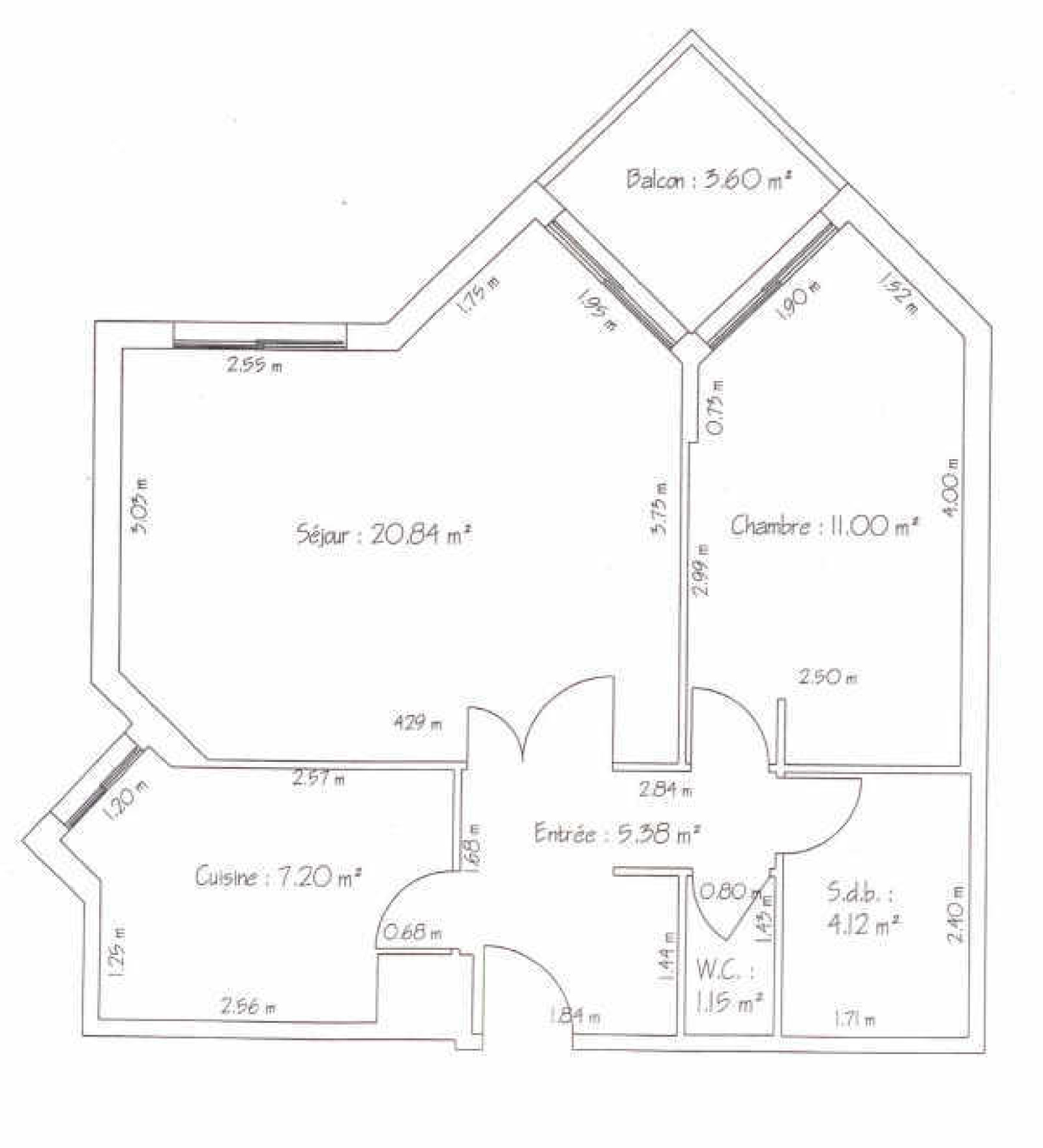
Appartement 2 pièce(s) 1 chambre(s) 50 m²
248 000 €
Réf
01458
VANVES: PROCHE PARIS: Charmant 2 pièces de 50m² avec balcon, cave et parking. Habitable de suite, calme et trés proche du métro et des commerces. Contactez nous au: 01 46 44 46 00
Bilan énergétique
Diagnostics énergetiques
Consommation énergétique
A
B
C
D
E
F
G
Emission de gaz à effet de serre
A
B
C
D
E
F
G
DPE ANCIENNE VERSION
Bilan énergétique
Diagnostics énergetiques
DPE ANCIENNE VERSION
A propos de ce bien
Caractéristiques de ce bien
- Surface 50 m²
- 1 chambre(s)
- 1 salle(s) de bain
- construit en 1982
- Chauffage autre : autre (mixte)
- 3ème étage
- 10 étage(s)
- ascenseur
- cave
- balcon
- interphone
- accès handicapé
Financier
Informations financières
Prix de vente
248 000 €
Les honoraires d'agence seront intégralement à la charge du vendeur
Taxe foncière annuelle
942 €
