Vanves (92170)
Appartement 3 pièce(s) 2 chambre(s) 43.35 m²
230 000 €
Réf
01663
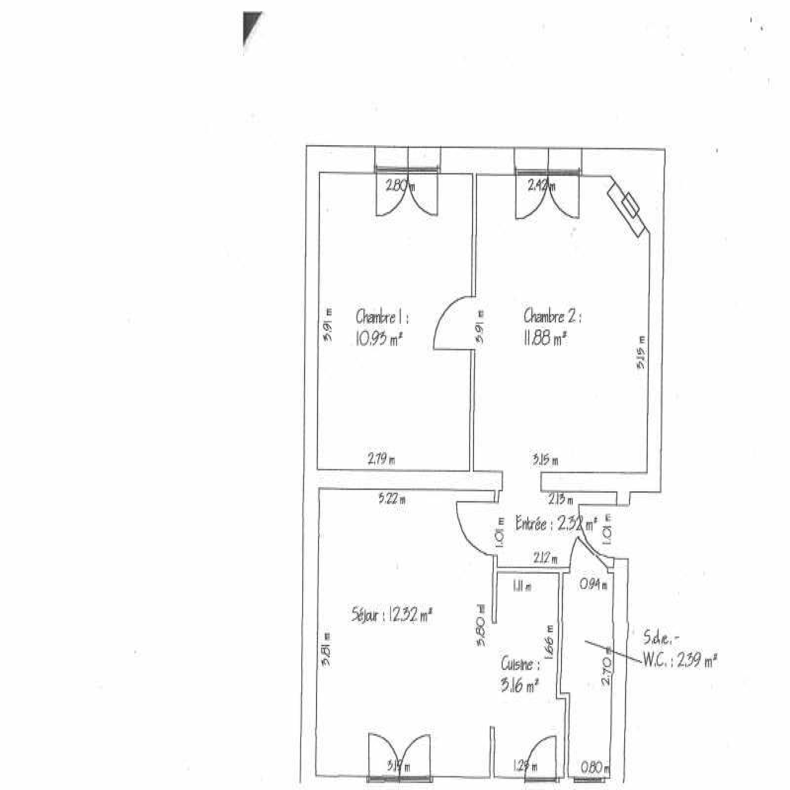
Vanves - 3 pièces - 43 m²~PLATEAU DE VANVES : Dans petite copropriété à faibles charges, à 2 minutes du métro L13 et des commerces, 3 pièces de 43, 35 m² bien agencé comprenant une entrée, une cuisine ouverte sur le séjour, 2 chambres, une salle d'eau avec WC et une cave. et interphone. Appartement vendu libre au 2 Février 2012.~Contact : 01 46 44 46 00
Bilan énergétique
Diagnostics énergetiques
Consommation énergétique
A
B
C
D
E
F
G
Emission de gaz à effet de serre
A
B
C
D
E
F
G
DPE ANCIENNE VERSION
Bilan énergétique
Diagnostics énergetiques
DPE ANCIENNE VERSION
A propos de ce bien
Caractéristiques de ce bien
- Surface 43,35 m²
- carrez 43,35 m²
- 2 chambre(s)
- 1 salle(s) d'eau
- construit en 1930
- Chauffage individuel : radiateur (gaz)
- 3 étage(s)
- cave
- interphone
Financier
Informations financières
Prix de vente
230 000 €
Les honoraires d'agence seront intégralement à la charge du vendeur
