Malakoff (92240)
Appartement 4 pièce(s) 3 chambre(s) 79.47 m²
555 000 €
Réf
01811
Malakoff : ~Dans résidence de standing livrée en 2001, a proximité du centre ville et des transports, appartement de 79,47m² carrez, au 2ème étage comprenant: entrée, sejour avec cuisine US, 3 chambres dont 1 suite parentale donnant sur cours, sdb, wc.~Balcon. Parking en sous sol.~Contact commercial : 01.46.44.46.00
Bilan énergétique
Diagnostics énergetiques
Consommation énergétique
A
B
C
D
E
F
G
Emission de gaz à effet de serre
A
B
C
D
E
F
G
DPE ANCIENNE VERSION
Bilan énergétique
Diagnostics énergetiques
DPE ANCIENNE VERSION
A propos de ce bien
Caractéristiques de ce bien
- Surface 79,47 m²
- carrez 79,47 m²
- 3 chambre(s)
- 1 salle(s) de bain
- 1 salle(s) d'eau
- construit en 2001
- Chauffage individuel : autre (electrique)
- 2ème étage
- 5 étage(s)
- ascenseur
- balcon
- interphone
- accès handicapé
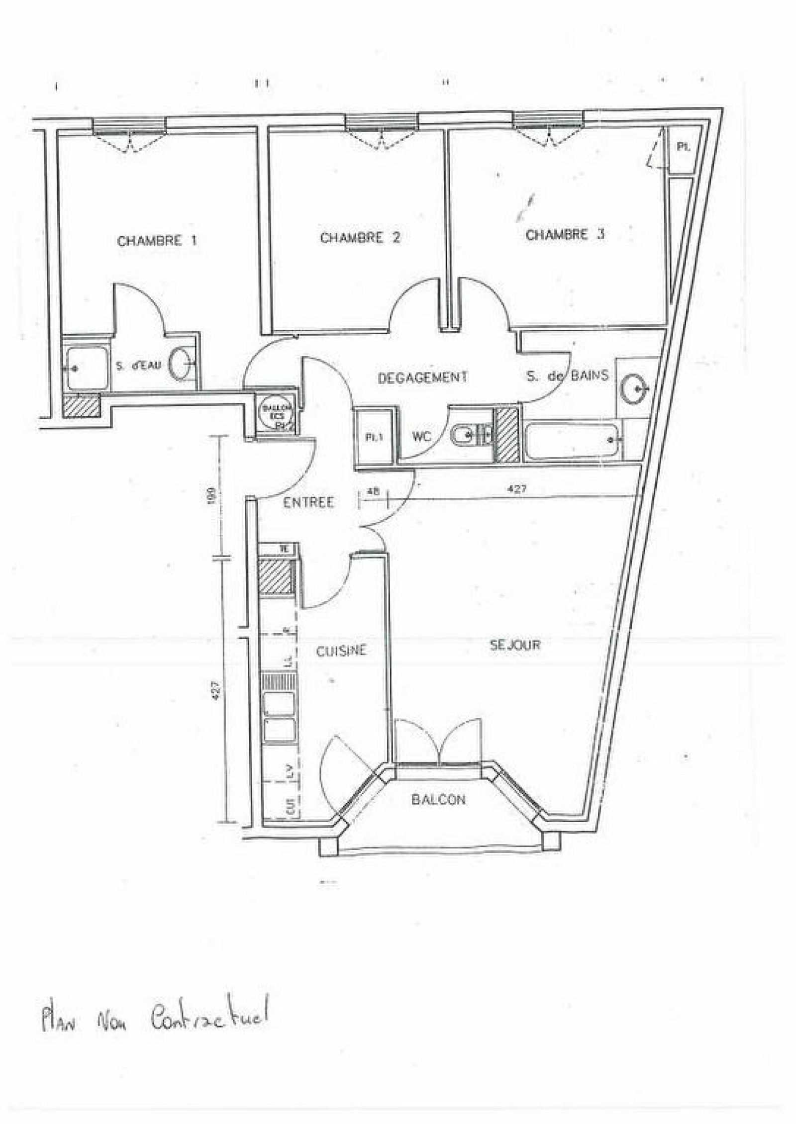
Composition
Composition de ce bienRez-de-chaussée
- Entrée 3.4 m²
- Placard 1.23 m²
- Cuisine 28.78 m²
- Couloir 4.32 m²
- Chambre 1 12.19 m²
- Salle d\'eau 1.97 m²
- Chambre 2 9.57 m²
- Chambre 3 11.84 m²
- Salle de bains 4.8 m²
- W.C. 1.37 m²
Financier
Informations financières
Prix de vente
555 000 €
Les honoraires d'agence seront intégralement à la charge du vendeur
Taxe foncière annuelle
1 100 €
