Vanves (92170)
Appartement 3 pièce(s) 1 chambre(s) 58 m²
315 000 €
Réf
02525
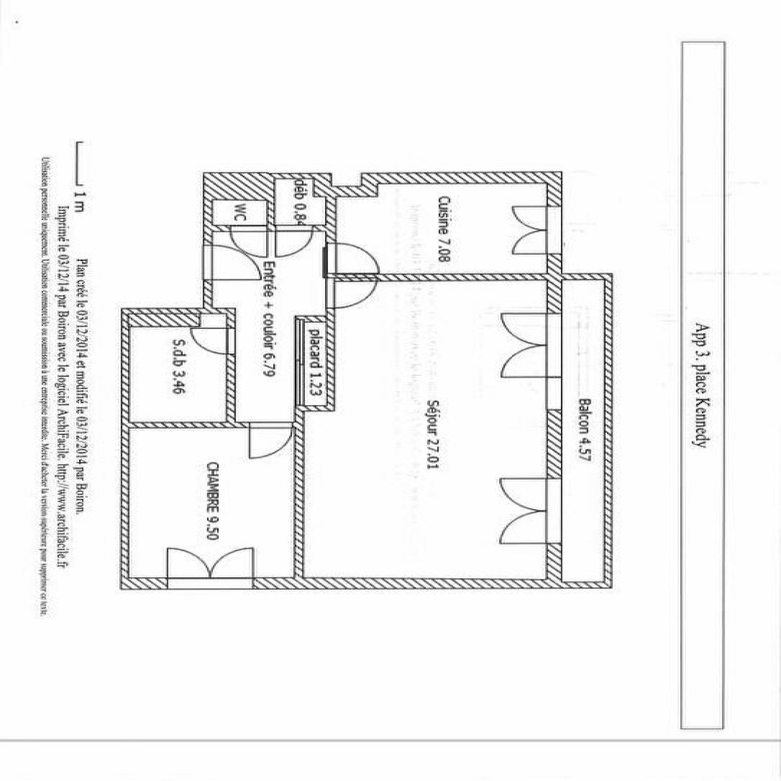
Proche toutes commodités ( Métro L12, commerces, parc, écoles....) au 10ème étage d'une copropriété en très bon état avec gardienne, 3 pièces de 57.18m² au calme et vue dégagée comprenant entrée avec placards, cuisine, séjour de 27 m2, donnant sur balcon, une chambre ( poss 2 eme chambre), salle de bains, Wc.~Cave et parking en sous-sol.
Bilan énergétique
Diagnostics énergetiques
Consommation énergétique
A
B
C
D
E
F
G
Emission de gaz à effet de serre
A
B
C
D
E
F
G
DPE ANCIENNE VERSION
Bilan énergétique
Diagnostics énergetiques
DPE ANCIENNE VERSION
A propos de ce bien
Caractéristiques de ce bien
- Surface 58 m²
- carrez 58 m²
- 1 chambre(s)
- construit en 1960
- TRAD_DETAIL_INFOS_GLOBAL_DEFAULT_CUISINE_FORMATED_SIMPLE_
- Chauffage collectif : au sol (gaz)
- 10ème étage
- 16 étage(s)
- ascenseur
- interphone
- accès handicapé
Financier
Informations financières
Prix de vente
315 000 €
Les honoraires d'agence seront intégralement à la charge du vendeur
