Vanves (92170)
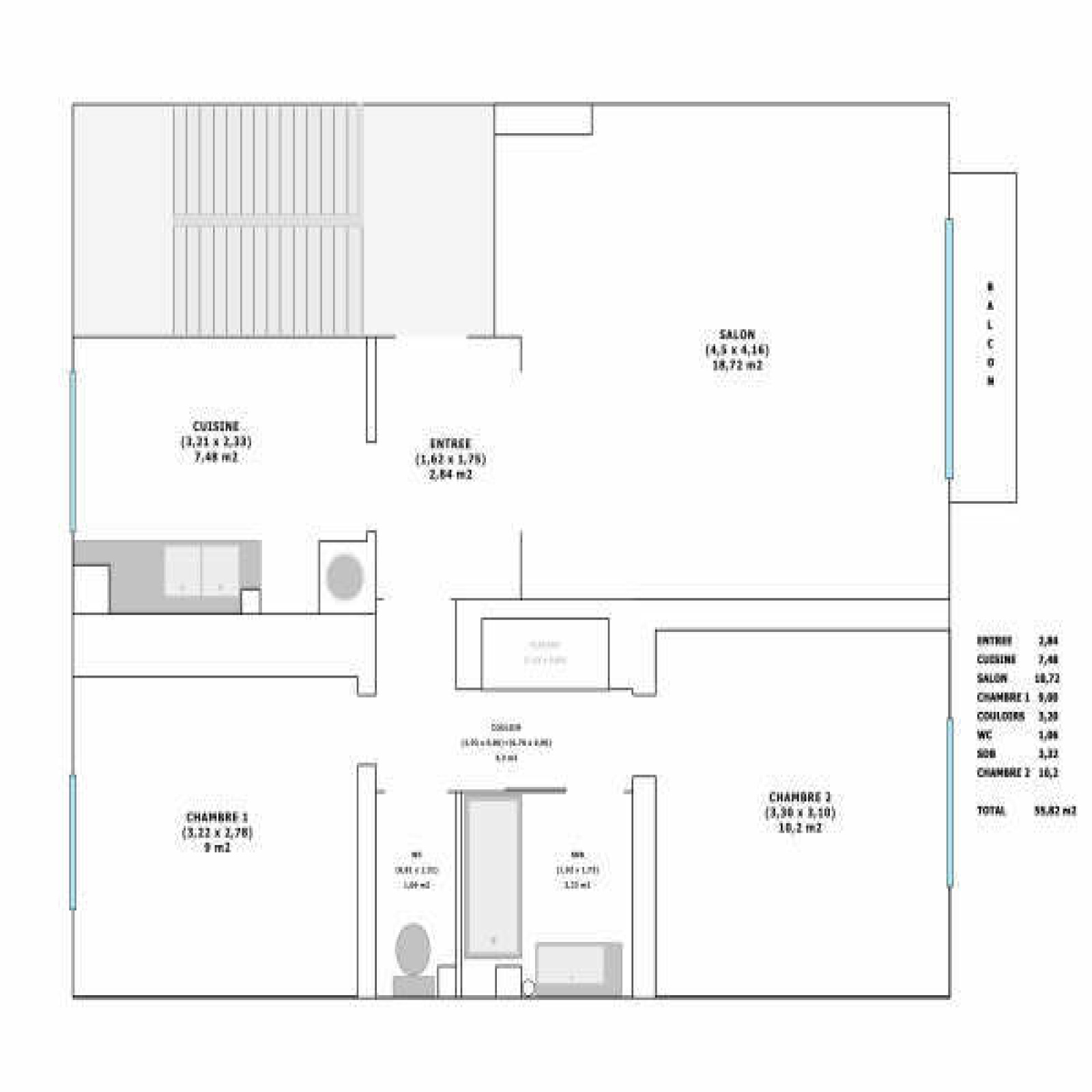
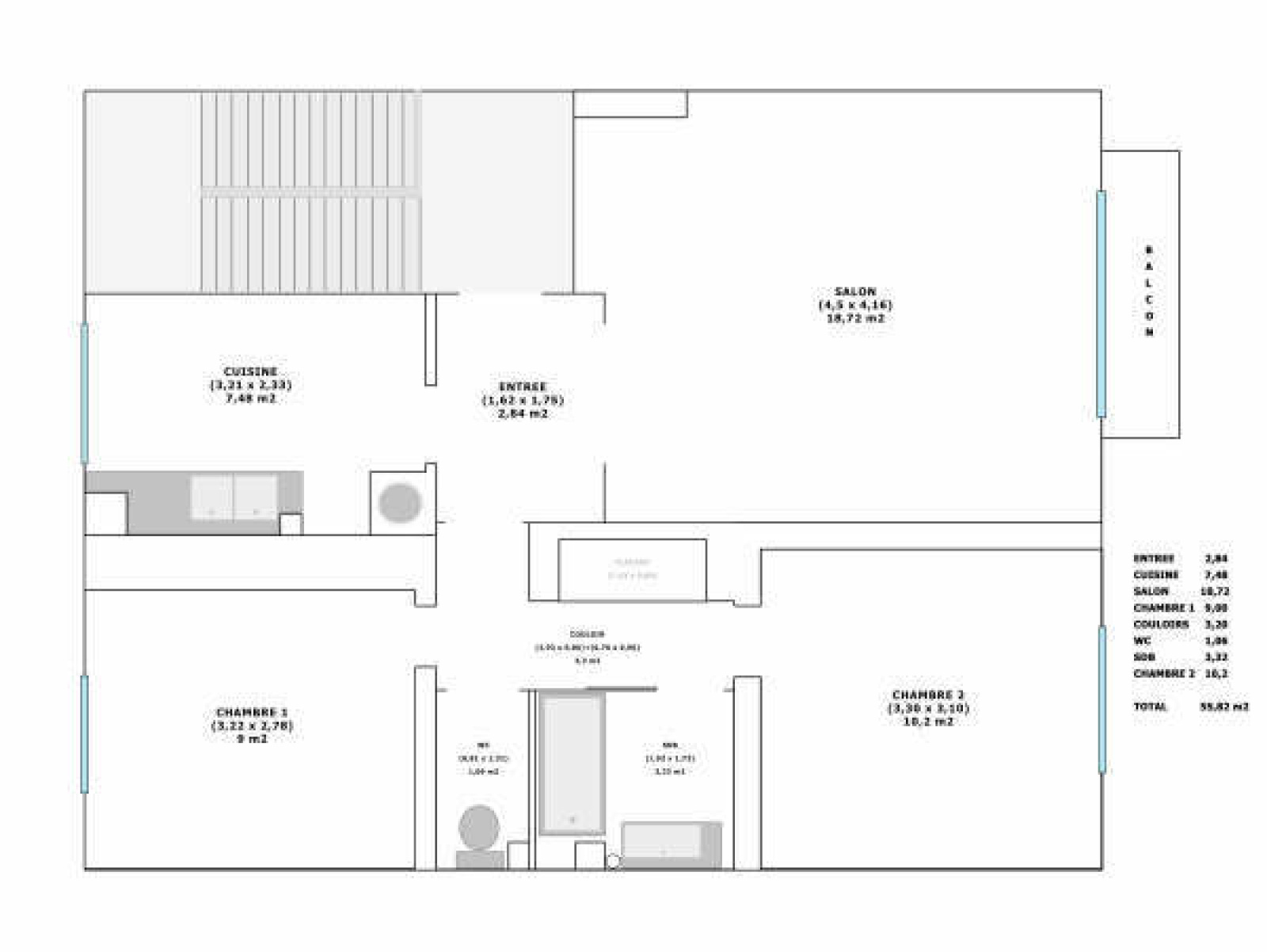
Appartement 3 pièce(s) 2 chambre(s) 55.72 m²
284 000 €
Réf
02076
VANVES :~CLOS MONTHOLON, dans petite co-propriété calme, au 4ème et dernier étage, appartement traversant de 55,72m² comprenant entrée desservant séjour avec balcon, cuisine aménagée, couloir avec placards distribuant WC séparés, salle de Bains, 2 chambres.CAVE~Contact commercial : 01.46.44.46.00
Bilan énergétique
Diagnostics énergetiques
Consommation énergétique
A
B
C
D
E
F
G
Emission de gaz à effet de serre
A
B
C
D
E
F
G
DPE ANCIENNE VERSION
Bilan énergétique
Diagnostics énergetiques
DPE ANCIENNE VERSION
A propos de ce bien
Caractéristiques de ce bien
- Surface 55,72 m²
- carrez 55,72 m²
- 2 chambre(s)
- 1 salle(s) de bain
- construit en 1970
- Chauffage collectif : radiateur (gaz)
- 4ème étage
- 4 étage(s)
- cave
- balcon
Financier
Informations financières
Prix de vente
284 000 €
Les honoraires d'agence seront intégralement à la charge du vendeur
Taxe foncière annuelle
665 €
