Vanves (92170)
Appartement 2 pièce(s) 1 chambre(s) 31.24 m²
210 000 €
Réf
01585
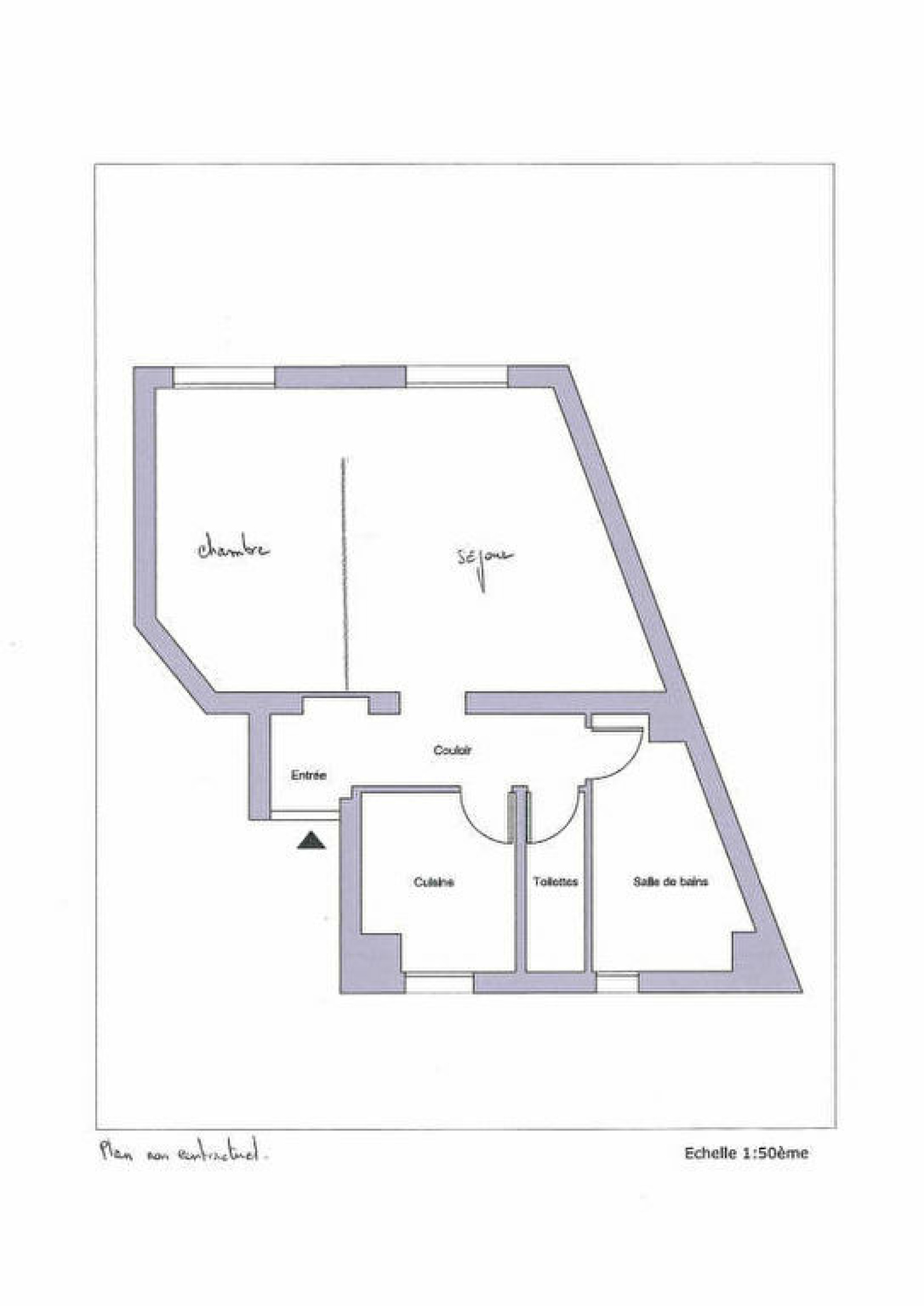
VANVES : ~10 min Corentin CELTON.Dans petite corpopriété 1930, appartement au 1er étage sans ascenseur en bon état, comprenant entrée, séjour, cuisine séparée, wc, salle de bains, chambre. ~Contact : 01.46.44.46.00
Bilan énergétique
Diagnostics énergetiques
Consommation énergétique
A
B
C
D
E
F
G
Emission de gaz à effet de serre
A
B
C
D
E
F
G
DPE ANCIENNE VERSION
Bilan énergétique
Diagnostics énergetiques
DPE ANCIENNE VERSION
A propos de ce bien
Caractéristiques de ce bien
- Surface 31,24 m²
- 1 chambre(s)
- 1 salle(s) de bain
- construit en 1930
- Chauffage individuel : autre (electrique)
- 1er étage
- 5 étage(s)
Financier
Informations financières
Prix de vente
210 000 €
Les honoraires d'agence seront intégralement à la charge du vendeur
Taxe foncière annuelle
334 €
