
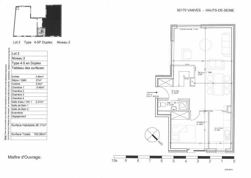
Vanves (92170)
Appartement 5 pièce(s) 4 chambre(s) 103 m²
758 000 €
Réf
01266
VANVES : MARY BESSEYRE : PROGRAMME NEUF : Au coeur de la ville de Vanves, Appartement sur 2 nivx occupant les derniers étages. Au 1er niv : 6 P traversant, 103m², 3 chambres, bureau ou chambre d'enfant, balcons, grand séjour, cuisine modulable. Au dessus un espace détente « Plein Ciel » vue dégagée sur Paris, terrasse, Solarium... et piscine possible ! Bon plan à découvrir ! Livraison fin 2010* COUP DE COEUR*
Bilan énergétique
Diagnostics énergetiques
Consommation énergétique
A
B
C
D
E
F
G
Emission de gaz à effet de serre
A
B
C
D
E
F
G
DPE ANCIENNE VERSION
Bilan énergétique
Diagnostics énergetiques
DPE ANCIENNE VERSION
A propos de ce bien
Caractéristiques de ce bien
- Surface 103 m²
- 4 chambre(s)
- construit en 2010
- Chauffage individuel : autre (electrique)
- 2 niveau(x)
- 4ème étage
- 5 étage(s)
- ascenseur
Financier
Informations financières
Prix de vente honoraires TTC inclus
758 000 €