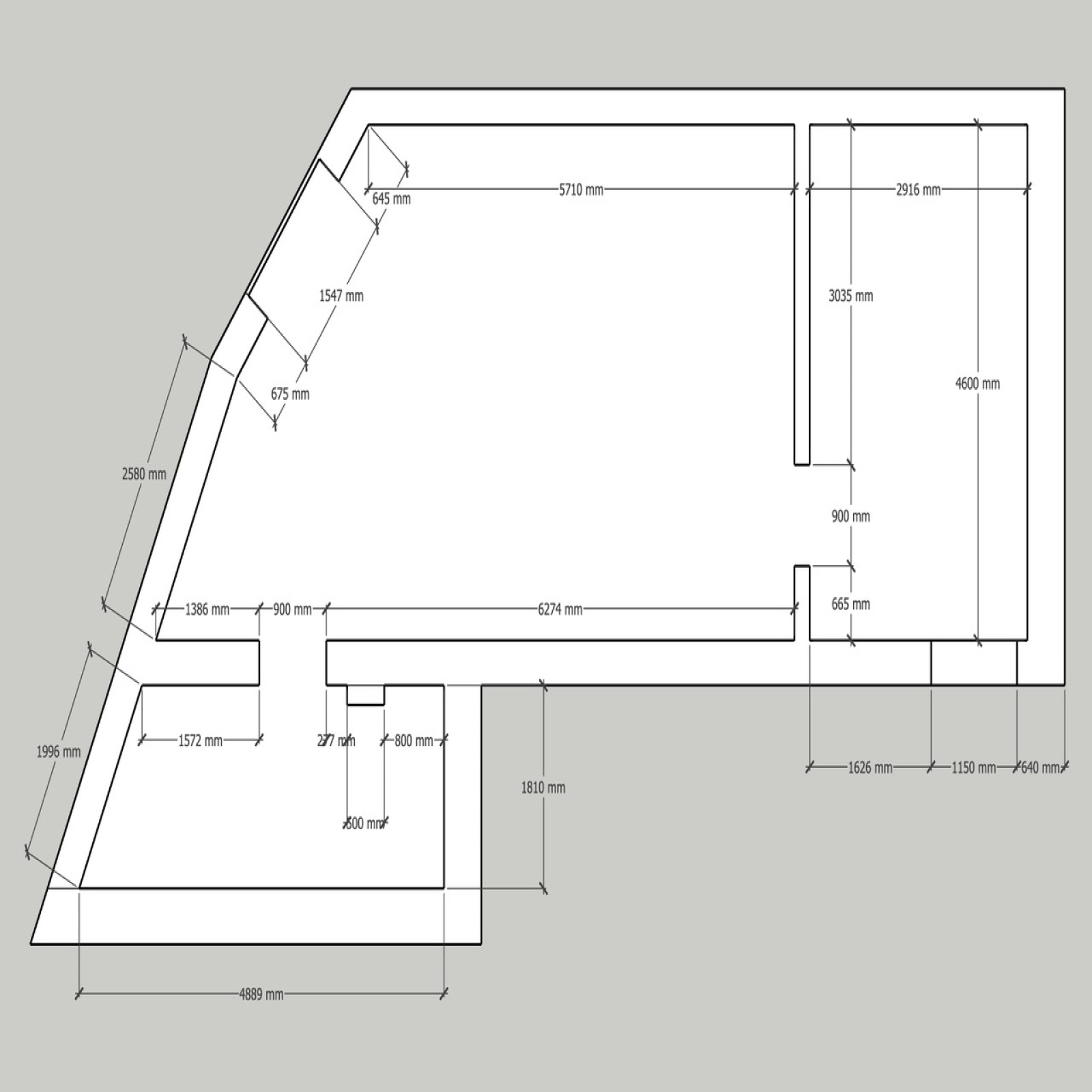
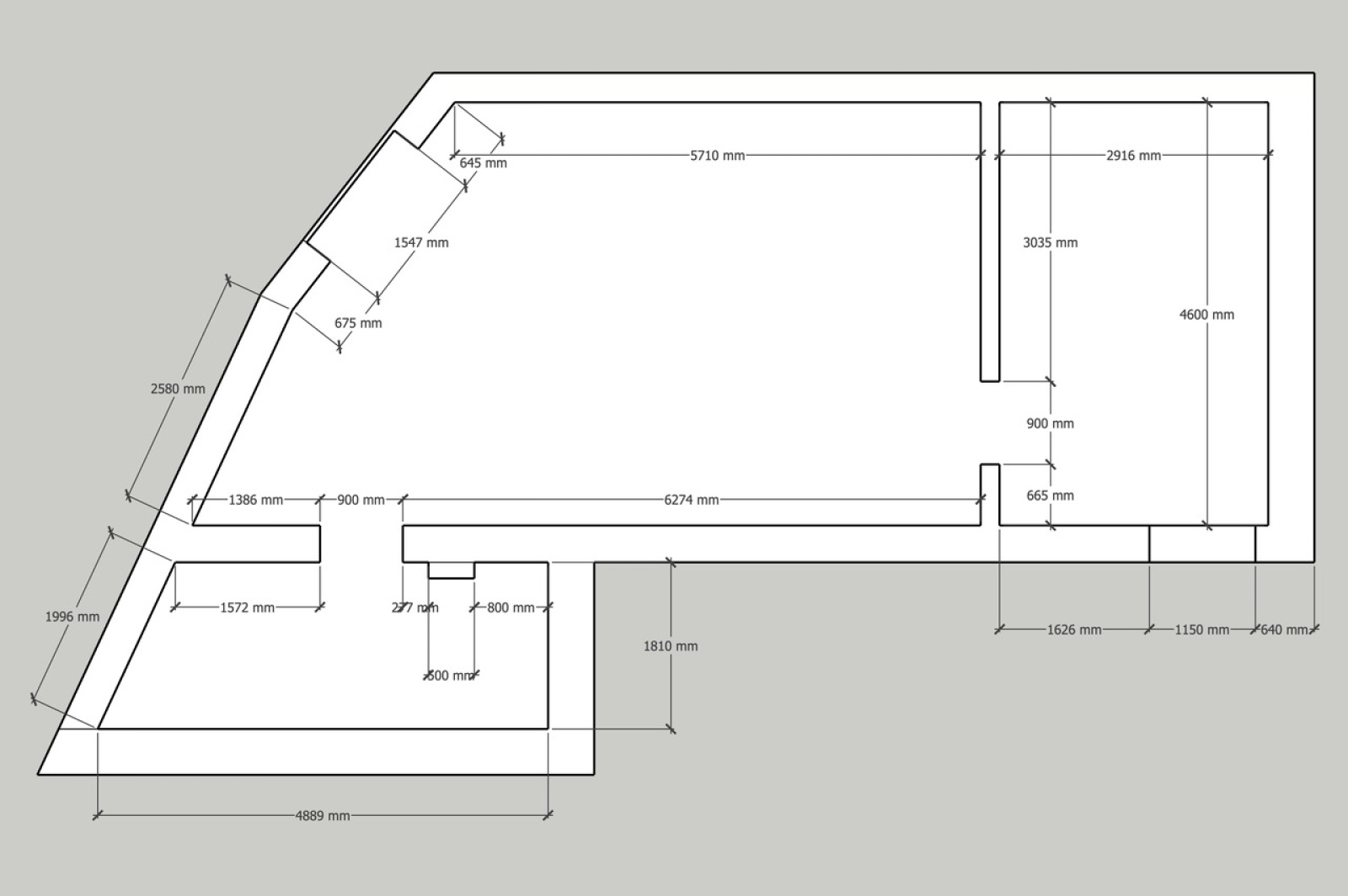
A vendre local commercial de 55 m2 plus annexes permettant une extension d'environ 15 m2, local offrant une très bonne visibilité puisque situé en angle de deux rues passantes (rue Solférino et rue Victor Hugo).
Peut être aménagé pour LMP après réalisation de quelques travaux intérieurs. Forte demande liée à la proximité immédiate du Parc des Expositions de la Porte de Versailles.
Peut aussi parfaitement convenir à un usage professionnel, notamment médical, juridique, société de services avec accueil de clientèle...
Les informations sur les risques auxquels ce bien est exposé sont disponibles sur le site Géorisques
