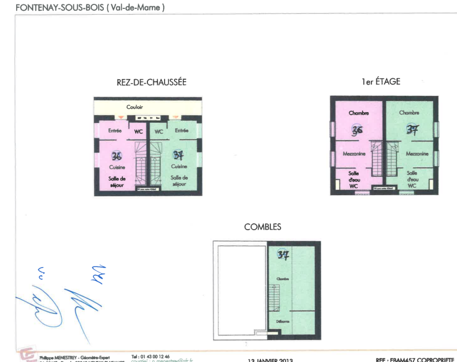
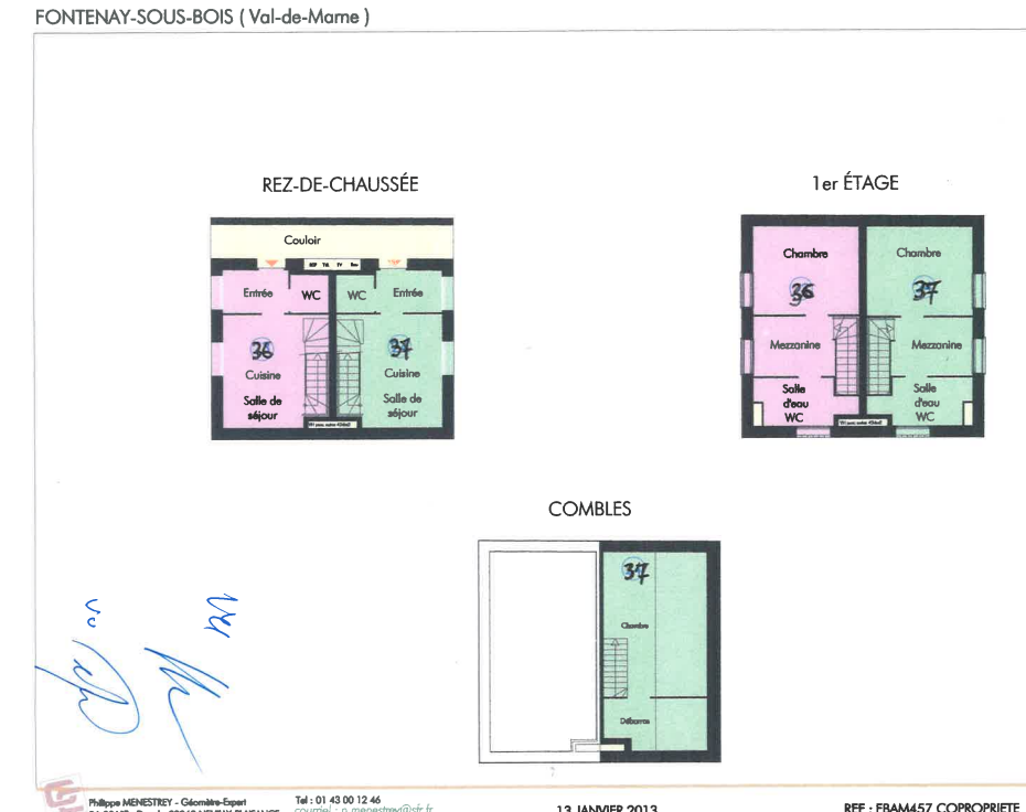
A LOUER - FONTENAY SOUS BOIS (94120) - à 2min à pieds du RER VAL DE FONTENAY - rue Louis Auroux - Dans belle petite maison individuelle, deux pièces duplex de 42.10m² en excellent état. L'appartement comprend au RDC : une entrée un espace séjour donnant sur terrasse et jardin privatif, une cuisine ouverte semi-équipée et un wc séparé. Au 1er étage une mezznine avec espace bureau, une chambre et une salle de d'eau. Chauffage par pompe à chaleur.
Disponible immédiatement.
